0
Saltar al contenido
HOME
NOSOTROS
SERVICIOS
PROYECTOS
CONTACTO
Abrir menú
Cerrar menú
HOME
NOSOTROS
SERVICIOS
PROYECTOS
CONTACTO
Abrir menú
Cerrar menú
HOME
NOSOTROS
SERVICIOS
PROYECTOS
CONTACTO
Próximamente
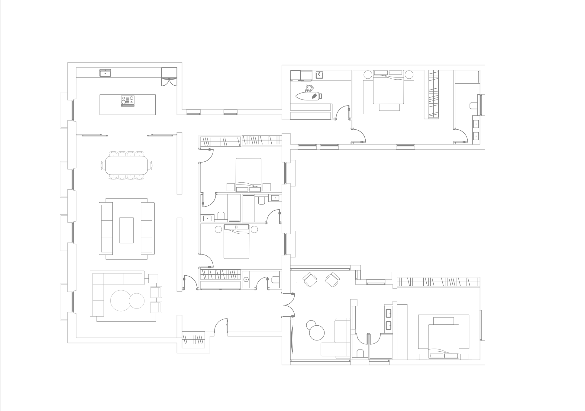
Goya 23 - Madrid
Anterior
Anterior
CA16 | Activo residencial